-
ABS塑料組成特性及注塑加工優勢
發布時間:2016/11/21標簽:ABS材質瀏覽次數:10172
ABS塑料是丙烯腈-丁二烯-苯乙烯共聚物的縮寫,在廣東地區常被稱之為超不碎膠。根據化學成分的分類,也可以看做是PB(聚丁二烯)、BS(丁苯橡膠)、PBA(丁腈橡膠)分散于AS(丙烯腈-苯乙烯的共聚物)或PS(聚苯乙...
-
水泥混凝土實心磚規格及技術指標要求
發布時間:2016/11/21標簽:水泥磚混凝土實心磚瀏覽次數:25345
以水泥、骨料,以及根據需要加入的參合物、外加劑等,經過水攪拌、成型、養護預制而成的水泥混凝土實心磚,主要規格尺寸約為240毫米乘以155毫米乘以53毫米,具體類似由護坡磚模具預制而成水泥實心磚則由供需雙方...
-
塑料原料英文簡稱及中文對照表
發布時間:2016/11/18標簽:塑料原料塑料原料中英文對照瀏覽次數:9649
塑料原料的種類有很多,不論是行業內還是行業外用戶對其繁多的英文簡稱及中文名詞難以完整搭配,此個塑料原料中英文對照表有效幫您解決此類問題。
-
PP|PC|ABS|PVC|PA|PS|SAN|POM|PMMA等塑料顆粒鑒別方法
發布時間:2016/11/12標簽:ABS材質PP聚丙烯塑料瀏覽次數:20164
如何分辨PP、PC、ASB、PVC、PA、PS、SAN、POM和PMMA等塑料顆粒,如果您需要深入了解,那么采用外觀鑒別、密度質量鑒別和燃燒特性來進行排除鑒別,即可解決你對于不同種類塑料的疑問。
-
路牙石定義規格及整體施工質量要求
發布時間:2016/11/10標簽:路側石路平石路沿石路牙石路緣石路肩石瀏覽次數:26705
路牙石,也稱之為路緣石、路沿石,下分類有路側石、路肩石、路平石三種。以水泥和密實集料為主要原料,經振動法,壓縮法采用水泥路牙石模具、路緣石模具、路沿石模具預制鋪設在路面邊緣、側面、平面及倒水用的水...
-
混凝土馬路磚簡介及各技術指標要求
發布時間:2016/11/09標簽:馬路磚瀏覽次數:13826
以水泥和集料為主要原材料,經加壓,振動加壓或者使用路面彩磚模具等成型工藝制成的,用于鋪設人行道、車行道、廣場、倉庫等的混凝土路面及地面工程的塊、板等,其表面可以是有面層水泥彩磚樣式,又或者為無面層...
-
混凝土空心磚分類標記及技術要求
發布時間:2016/11/09標簽:水泥空心磚模具瀏覽次數:9021
按照尺寸偏差及外觀質量,混凝土空心磚主要分為優等品(A)、一等品(B)及合格品(C)三種,按照強度等級分類,主要有MU3.5,MU5.0,MU7.5,MU10.0,MU15.0,MU20.0。
-
路基護坡邊坡施工環境
發布時間:2016/11/05標簽:護坡瀏覽次數:6870
邊坡是自然或者人工形成的斜坡,基本為巖體或土質在自然重力作用下或者人為作用下形成具有一定傾斜度的臨空面,是人類工程活動中最基本的地質環境之一,而邊坡護坡也是高鐵、高速公路工程建設中最為常見的路基護...
-
水泥圍欄塑料模具種類及施工流程
發布時間:2016/11/01標簽:水泥圍欄模具水泥護欄塑料模具水泥柵欄塑料模具瀏覽次數:9740
自從各類水泥模具向各類建筑施工行業的逐漸拓展,主要規劃就只有兩類,國家大型工程建設及民用建筑建設,就以水泥圍欄塑料模具產品來講,可用于國家高鐵、鐵路、高速路基防護圍欄之用及民房陽臺圍欄施工等用途。
-
護坡六棱塊塑料模具你了解多少?
發布時間:2016/10/31標簽:六棱塊護坡塑料模具六棱塊模具瀏覽次數:6867
護坡六棱塊塑料模具基本采用聚丙烯塑料加工而來,專業行業術語稱為六角護坡模具,產品出生于90年代末期。根據其樣式還分為空心護坡六棱塊塑料模具及實心六棱塊塑料模具,一般以搭配拱形護坡模具組合施工,多用于...
-
RPC蓋板施工流程
發布時間:2016/10/28標簽:rpc蓋板RPC蓋板模具瀏覽次數:11953
RPC蓋板作為高鐵建設中不可或缺的一種砼預制制品,不論是使用數量還是應用場景都是相當重要,所以在對于RPC蓋板預制澆筑施工及養護過程中,務必需遵循以下幾個施工要點,只有基礎工作嚴謹有序,才能真正保證國家...
-
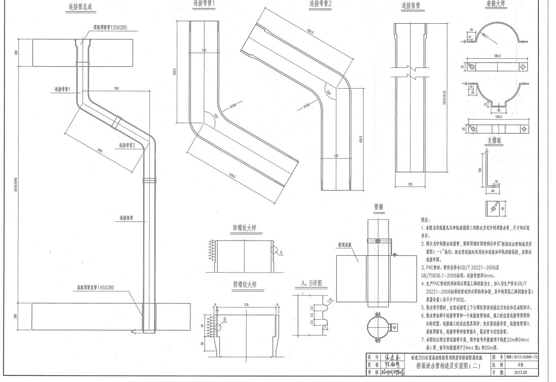
高鐵橋梁橋面泄水管平面構造及安裝圖
發布時間:2016/10/19標簽:高鐵鐵路模具瀏覽次數:18053
圖中內容中所提高鐵橋面泄水管均采用125直徑PVC材質,平面構造圖總共包括橋梁泄水管連接管總成、連接彎管1、連接彎管2、連接豎管、管箍及套箍大樣等,主要服務于時速350公里高速鐵路常用跨度梁橋面附屬設施,圖號...














